物件詳細

新築一戸建て
真光寺1丁目新築戸建て 1
東京都町田市真光寺1丁目
新築一戸建て(新築)
交通 小田急線/鶴川 バス17分 鶴川台中央 停歩2分 土地面積 120.35m2
販売価格 4,490万円
< ローンシミュレーション >
建物面積 建物面積:90.46m2
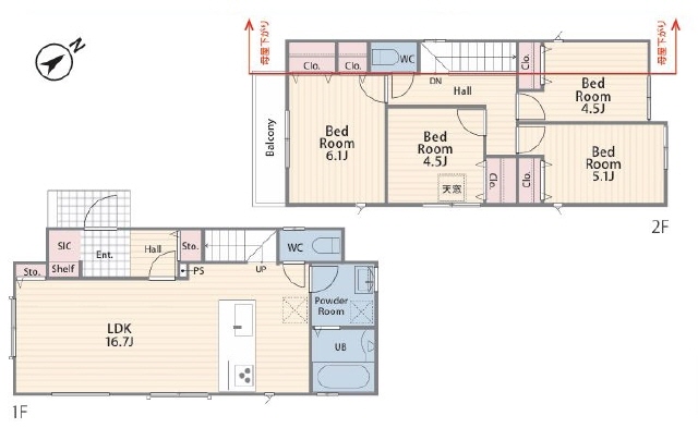
間取り 4LDK 完成予定 2026/01
  • 建物全体浄水器 フィルター交換別途費用掛かります/年
    建物全体浄水器 フィルター交換別途費用掛かります/年

その他交通 京王相模原線/若葉台 バス7分 真光寺 停歩3分
小田急多摩線/栗平 徒歩24分
販売戸数/総戸数 --戸/--戸
建物構造 木造 建ぺい率/容積率 40%/80%
最多価格帯 私道面積 (無)
敷地権利 所有権 国土法 -
地代/借地期間 -- 用途地域 市街化区域 1種低層
権利金/保証金 -- 地目 宅地
その他費用 接道状況 南西側道路(公道/幅員6m)に6m接道、北東側道路(公道/幅員6m)に6m接道
間取り詳細 洋室4.5・洋室4.5・洋室5.1・洋室6.1・LDK16.7 地勢 -
駐車場 付(2台) 建築確認番号 01582
引渡時期 施工会社 --
周辺環境 (教育施設)鶴川第四小学校 約1,300m、(教育施設)真光寺中学校 約550m、(その他)犬と猫の診療所 ロクス 約500m
特記事項 LDK16.7Jリビングイン階段です。網戸付、S-ICL 天窓駐車場2台 などなど 横濱家ラーメンの裏手側です 人気のミラブル搭載
設備・条件 電気、ガス(都市)、水道(公営)、給湯、食器洗浄乾燥機、浄水器、システムキッチン、対面キッチン、ガスキッチン、ガスコンロ(付)、グリル、バス、トイレ(2箇所)、洗面台、バス・トイレ別、ユニットバス、追い炊き式、浴室換気乾燥機、洗面所独立、脱衣所、シャンプードレッサー、洗面台、暖房便座、室内洗濯機置場、排水(下水)、フローリング、吹抜、収納、床下収納、クローゼット、ウォークインクローゼット、物入、下駄箱、TV付インターフォン、駐車台数、バリアフリー、手摺り付き
ペット可、子供可
備考 採光向き:南西 Info-スーパー三和 190m セブンイレブン 270m●駐車場は車種によります●町田市学区は変更、統廃合がある場合がございますので、町田市HP等にてご確認お願いします。 物件登録日・更新日 2026年05月02日
売主 次回更新予定日 2026年05月16日
お問い合わせ番号 真光寺1-01
販売スケジュール --
取引態様 仲介
お問い合わせ
株式会社輪が家
神奈川県相模原市南区古淵2丁目4-2101
神奈川県知事免許(4)第27846号
TEL 042-707-7440
フリーダイヤル
FAX 042-707-7442
物件へのお問い合わせ
無料相談
最適な物件を探したい方は
新築一戸建てのプロ『戸建マイスター:松沢博』
に無料相談。
新築一戸建てのプロ マイスターに相談する

ページの先頭へ